Kulturbäckerei, Lüneburg
Kulturbäckerei
Mobile Ausstellungselemente und Lichtkonzept

Mobiles Ausstellungs- und Lichtkonzept
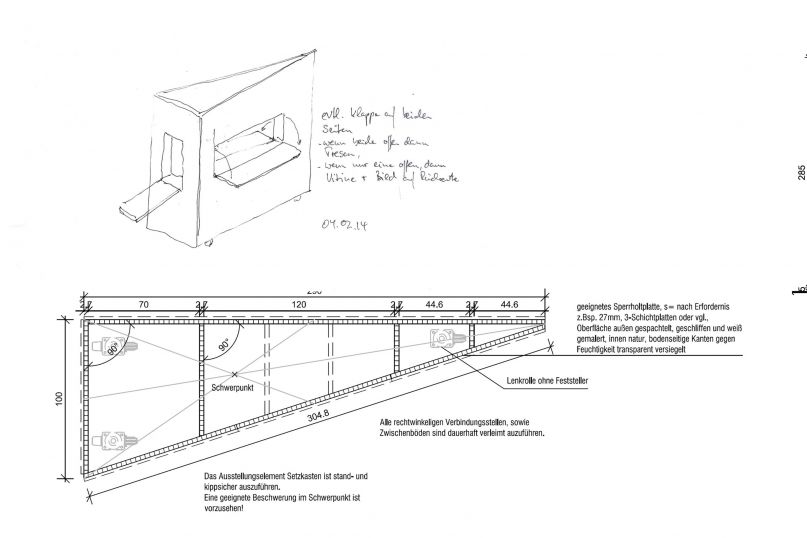
Sieben rollbare Tortenstücke und unendlich viele Möglichkeiten - das ist der Grundgedanke des Ausstellungskonzeptes.
Die mobilen Wandelemente stehen auf Lenkrollen und sind oben mit einer umlaufenden Galerieschiene ausgebildelt, von der Bilder abgehängt werden können.
Ganz individuell lässt sich damit jede Kunstausstellung nach Belieben umsetzen und die jeweils gewünschte Dramaturgie räumlich inszenieren.
Status fertiggestellt |
Kategorie Innenraum Konzeptentwicklung |
Ort Lüneburg |
Größe 375 m² |
Budget 100.000 € |
Zeitraum 2013 - 2014 |

Tortenstücke
für die
Kunst
Klare Zonierungen oder labyrinthische Raumabfolgen: innerhalb des offenen Grundrisses ist alles umsetzbar. Durch die schrägen Anschnitte der knapp drei Meter hohen Tortenstücke lässt sich dabei mit perspektivischen Verzerrungen und vielfältigen Blickbeziehungen der Kunstobjekte untereinander spielen. Und sollte mal keine Ausstellung sein, lassen sich die mobilen Ausstellungswände zu neutralen Boxen zusammenschieben.

Noch immer dieselbe Ausstellung, aber sich ständig wandelnde Raumeindrücke...


In neuem
Licht
Die linearen Strukturen von Stützen und Unterzügen prägen die Innenräume. Davon inspiriert wurden feingliedrige, dimmbare Langfeldleuchten zu orthogonalen Feldern zusammengeschlossen, die mit dem sichtbaren Gebäudetragwerk in Dialog treten - und dabei die vorgegebene Ordnung entweder aufnehmen und weiterführen oder ganz bewusst aufbrechen.

Fotos: bildhübsche fotografie - Andreas Körner - www.bildhuebsche-fotografie.de